Beschrijving

PER 1 APRIL TE HUUR: ZEER LUXE APPARTEMENT IN HET CENTRUM VAN GRONINGEN!

Let op: Woning is niet gemeubileerd!

Dit prachtige appartement bevindt zich in het centrum van Groningen aan het Gedempte Zuiderdiep. Het appartement is recent gerenoveerd en gemoderniseerd. De gehele eerste verdieping is voorzien van een visgraat PVC-vloer en de tweede verdieping van vloerbedekking. 

De woning is gelegen in de binnenstad van Groningen. Het openbaar vervoer, winkelstraten en supermarkten zijn op loopafstand bereikbaar. 

De huurprijs bedraagt €1.850,- exclusief per maand. De servicekosten bedragen €200,- per maand voor gas, water en elektra. De totale verhuurprijs is €2.050,- per maand. De waarborgsom bedraagt één maand huur. Contract voor minimaal 12 maanden.

Geïnteresseerd in dit prachtige appartement? Reageer via de website met introductie!

Aan bovenstaande kunnen geen rechten worden ontleend.

Eerste verdieping

Via de overloop is de ruime woonkamer toegankelijk. De woonkamer is voorzien van veel daglicht door de grote raampartij en is gelegen aan de voorzijde van het pand. Tevens is de woonkamer voorzien van een L-keuken in moderne stijl. De keuken is voorzien van al het denkbare apparatuur, zoals een koelkast, vriezer, stoomoven, vaatwasmachine, inductiekookplaat en afzuigkap. 

Het gastentoilet is bereikbaar vanaf de overloop.

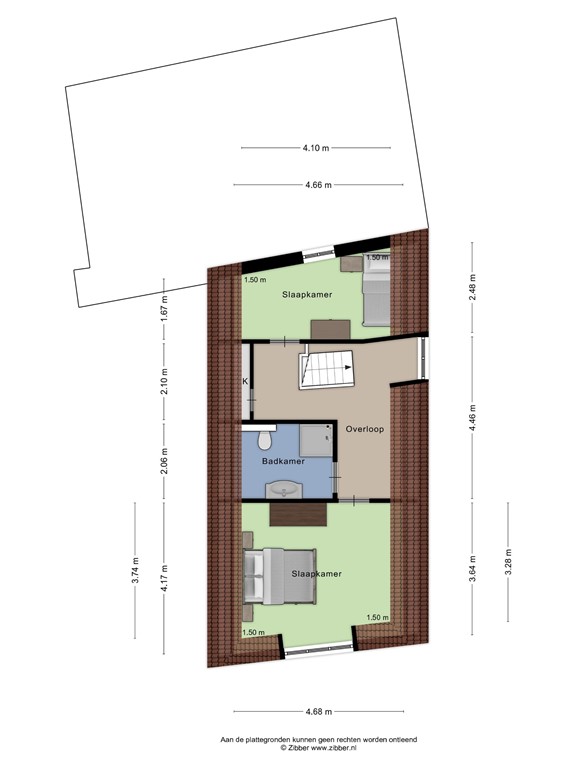
Tweede verdieping

De tweede verdieping is te bereiken middels een vaste trap. Vanuit de overloop krijg je toegang tot twee ruime slaapkamers, een aan de voorzijde en een aan de achterzijde van het pand. De luxe badkamer is voorzien van een inloopdouche, zwevend toilet en wastafel met -meubel.

Bijzonderheden

* Prachtig karakteristieke bovenwoning;
* Top locatie in de binnenstad;
* Perfect voor een gezin;

Kenmerken