Beschrijving

PER 1 MEI BESCHIKBAAR: ZEER LUXE APPARTEMENT NABIJ HET NOORDERPLANTSOEN! 

Op een prachtige locatie is per 1 mei dit zeer luxe één-slaapkamerappartement beschikbaar. Het appartement is gelegen op de begane grond van het complex van de Grote Leliestraat. Het appartement beschikt over een woonkamer met open keuken voorzien van hoogwaardige inbouw apparatuur, een slaapkamer, een luxe badkamer, een bijkeuken, een kelder voor opslag, een hal met marmeren vloer en glazen deur en een leuke achtertuin. De keuken is voorzien van koelkast, koffiezetapparaat, combi oven, vaatwasser, extra kastruimte en een bar. De badkamer is voorzien van ligbad, douche, toilet en wastafel. 

Het Noorderplantsoen en het stadscentrum zijn beide respectievelijk op ca. 2 en 5 minuten loopafstand. Ook voorzieningen zoals openbaar vervoer zijn om de hoek.

De huurprijs bedraagt €1174,14 exclusief. De servicekosten bedragen €200,- per maand, waardoor de totale huurprijs uitkomt op €1374,14 per maand. De waarborgsom bedraagt éénmaal de maandhuur. Contract voor minimaal 12 maanden.

Geïnteresseerd in dit prachtige appartement? Reageer dan via de website met introductie!

Aan bovenstaande kunnen geen rechten worden ontleend.

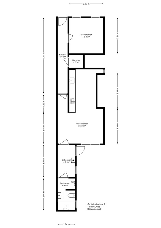
Indeling

Zie bijgevoegde plattegrond.

Tuin

Het appartement beschikt over een riante tuin van ca. 25 m2.

Bijzonderheden

- Huurprijs €1113,88,- exclusief
- Servicekosten €200,- (voorschot voor gas, water, elektra, tv en internet, is verrekenbaar)
- Geschikt voor een alleenstaand persoon (werkend) of een stel
- Waarborgsom bedraagt éénmaal de maandhuur
- Huurders worden gescreend

Kenmerken