Beschrijving

Per direct beschikbaar: Ruime bovenwoning met 4 slaapkamers!

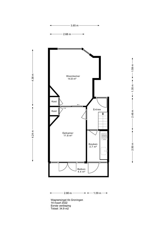
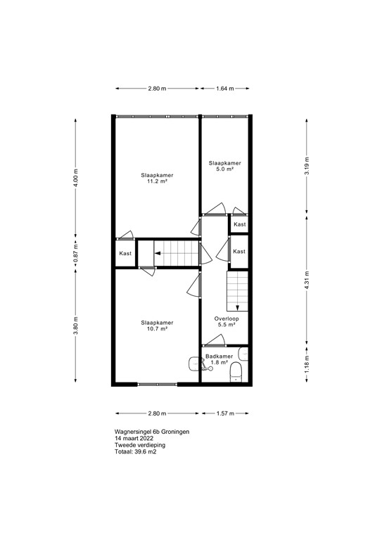
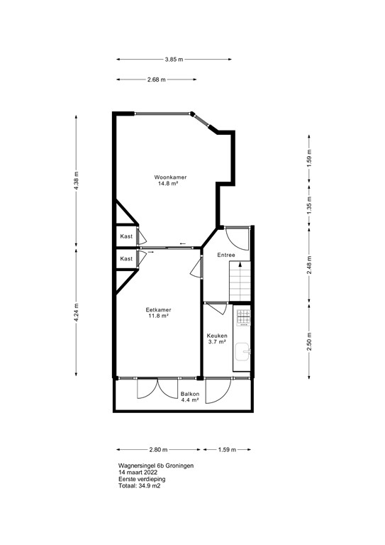
Aan de Wagnersingel komt dit prachtige gerenoveerde appartement beschikbaar. De woonkamer/eetkamer heeft een oppervlakte van 26,6m2. Tevens verleent de woonkamer toegang tot een klein balkon. Op de eerste verdieping zijn er twee slaapkamers met een oppervlakte van ca. 10,7m2 en 11,2m2. Ook is er een werk/studeerkamer met een oppervlakte van ca. 5m2. Het appartement beschikt ook over een zeer ruime zolderverdieping. De totale oppervlakte van het appartement is 97m2.

Zoals je op de foto's ziet worden de laatste puntjes nog op de i gezet, maar dat is met een paar dagen klaar.

Het appartement ligt in Helpman, een buurt met talloze voorzieningen. Op circa 5 minuten loopafstand ligt het station Europapark en het park Groenestein. Er is een mogelijkheid tot (betaald) parkeren in de straat.

De huurprijs bedraagt €2200,- exclusief per maand. Dit betekent dat de huurder zelf de (nuts)voorzieningen dient te verzorgen. Borg bedraagt éénmaal de maandhuur. Contract is voor minimaal 12 maanden.

Nieuwsgierig naar dit zeer ruime appartement? Reageer via de website met introductie!

Aan bovenstaande tekst kunnen geen rechten worden ontleend.

Bijzonderheden

- Niet geschikt voor studenten
- Bouwjaar 1942
- Woonoppervlakte 91m2

Kenmerken