| Prijs | € 295.000,- k.k. |
| Type object | Appartement, benedenwoning |
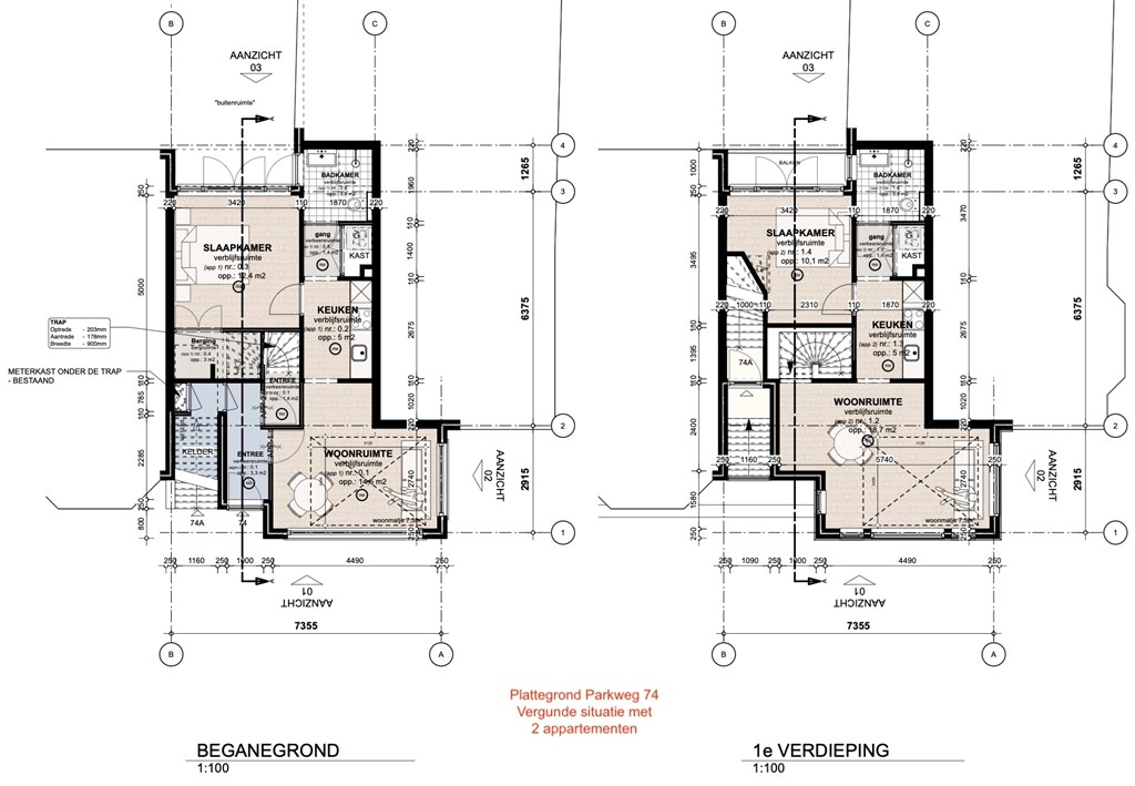
| Woonoppervlakte | 99,6 m² |
| Aanvaarding | In overleg |
| Status | Verkocht |
Interessant beleggingsobject met omgevingsvergunning voor het realiseren van twee appartementen. Het object is gelegen op de hoek van de Parkweg en de Rijstraat en bevindt zich op korte afstand van het centrum en het station. Het object is lang in gebruik geweest als kamerverhuurobject, maar is nu leeg. Het object dient gemoderniseerd te worden. BIJZONDERHEDEN - Beleggingsobject met mogelijkheden; - Inclusief verleende omgevingsvergunning voor het omzetten naar twee appartementen; - Meer informatie m.b.t. de omgevingsvergunning wordt op aanvraag verstrekt; - Het object wordt leeg en vrij van huur en gebruik geleverd; - Het object wordt verkocht 'As is, Where is'; - Alle getoonde maten en afmetingen in de advertentie zijn indicatief; - Aanvaarding in overleg. Het object is per direct beschikbaar.
| Referentienummer | 02107 |
| Vraagprijs | € 295.000,- k.k. |
| Status | Verkocht |
| Aanvaarding | In overleg |
| Aangeboden sinds | Woensdag 5 november 2025 |
| Laatste wijziging | Vrijdag 6 februari 2026 |
| Type object | Appartement, benedenwoning |
| Woonlaag | 1e woonlaag |
| Soort bouw | Bestaande bouw |
| Bouwperiode | 1938 |
| Dakbedekking | Bitumen Dakpannen |
| Type dak | Samengesteld |
| Isolatievormen | Grotendeels dubbel glas |
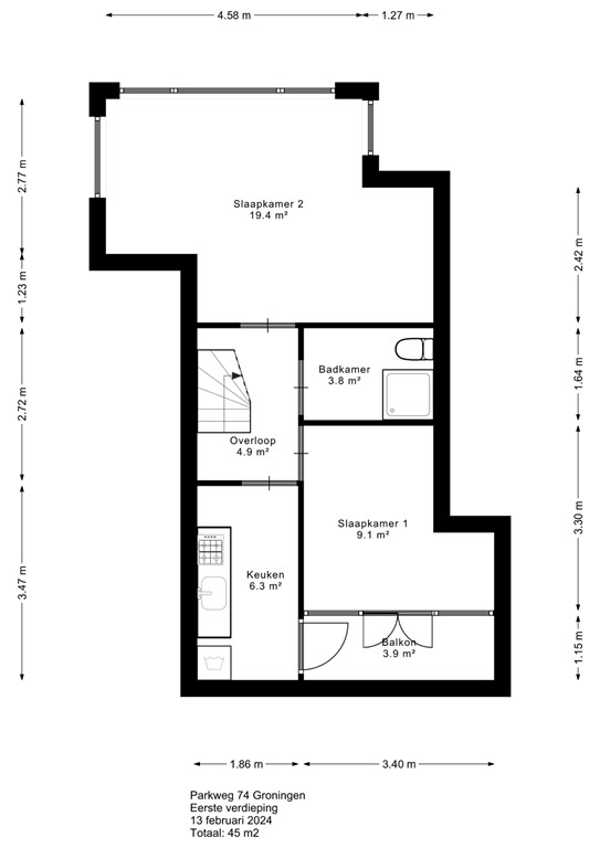
| Woonoppervlakte | 99,6 m² |
| Inhoud | 270 m³ |
| Oppervlakte overige inpandige ruimten | 21,6 m² |
| Oppervlakte externe bergruimte | 6,7 m² |
| Oppervlakte gebouwgebonden buitenruimte | 8,07 m² |
| Aantal bouwlagen | 2 (en 1 kelder) |
| Aantal kamers | 4 (waarvan 3 slaapkamers) |
| Aantal badkamers | 2 |
| Ligging | In woonwijk |
| Type | Achtertuin |
| Oriëntering | Zuiden |
| Heeft een achterom | Ja |
| Energielabel | F |
| Energie-index | 2,13 |
| CV ketel | Intergas |
| Warmtebron | Gas |
| Bouwjaar | 2021 |
| Combiketel | Ja |
| Eigendom | Eigendom |
| Warm water | CV-ketel |
| Verwarmingssysteem | Centrale verwarming |
| Ventilatie methode | Natuurlijke ventilatie |
| Badkamervoorzieningen Badkamer 1 | Douche Toilet |
| Heeft een balkon | Ja |
| Tuin aanwezig | Ja |
| Heeft schuur/berging | Ja |
| Kadastrale aanduiding | Groningen C 11806 |
| Omvang | Appartementsrecht of complex |
| Eigendomsituatie | Eigen grond |
| Indexnummer | 6 |