Verkocht onder voorbehoud: Parkweg 74, 9725 EL Groningen
Verkocht onder voorbehoud: Parkweg 74, 9725 EL Groningen
Verkocht onder voorbehoud: Parkweg 74, 9725 EL Groningen
Verkocht onder voorbehoud F

Parkweg 74, 9725 EL Groningen

€ 295.000,- k.k.

Beschrijving Parkweg 74

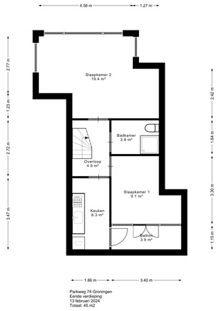
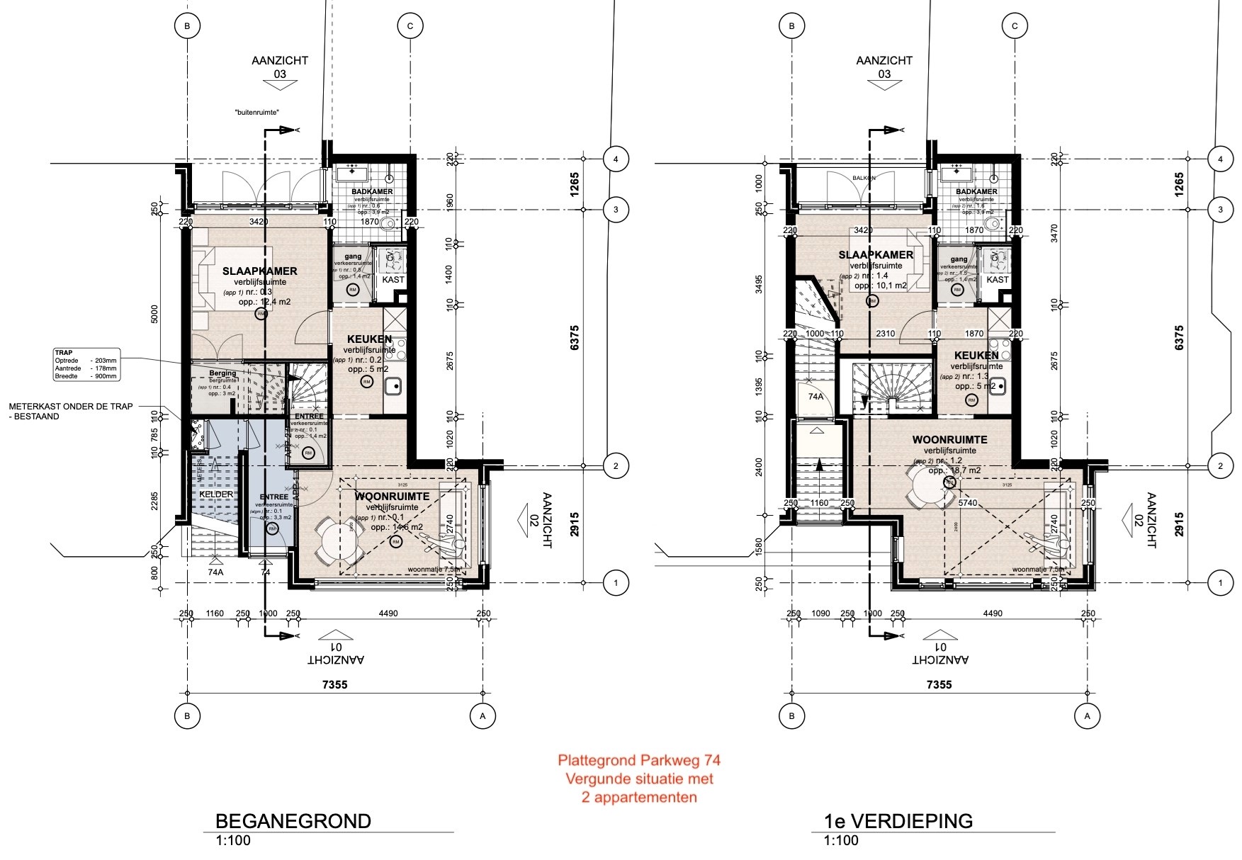
Interessant beleggingsobject met omgevingsvergunning voor het realiseren van twee appartementen. Het object is gelegen op de hoek van de Parkweg en de Rijstraat en bevindt zich op korte afstand van het centrum en het station. Het object is lang in gebruik geweest als kamerverhuurobject, maar is n...

Kenmerken

Type object Appartement, benedenwoning
Bouwperiode 1938
Status Verkocht onder voorbehoud
Aangeboden sinds Woensdag 5 november 2025

Parkweg 74 bekijken?

Wij plannen graag een bezichtiging met je in. Tijdens de bezichtiging vertelt een makelaar alles wat je wilt weten.

Vastgoed & Groningen

Tips en actualiteiten gedeeld door de vastgoedspecialist.

Hoe haal ik het maximale uit een vastgoedinvestering?

Vraag een adviesgesprek aan of bel +31 (0)50 - 364 62 19

Sluiten

Recent bekeken